Hirth coupling

Features

  • Calculation of the geometry and strength of Hirth couplings
  • Support of various special cases
  • Determination of axial load, preload, permissible surface pressure, safeties at maximum load
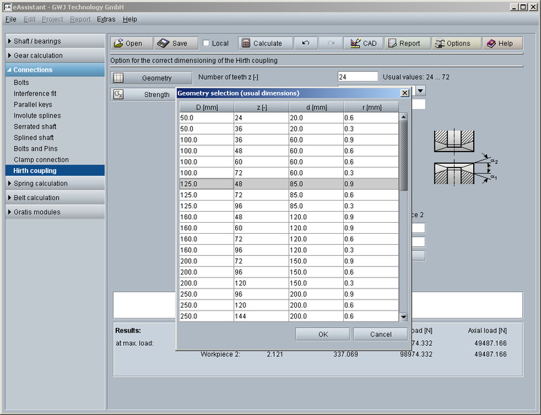
  • Common dimensions selectable from database
  • Material database for material selection
  • Determination of permissible pressures from material parameters
  • Output of CAD data via eAssistant CAD-PlugIns
  • Detailed calculation report in HTML and PDF format

Description

The calculation module can be used to determine the geometry and strength of Hirth couplings. By entering the number of teeth, outer and inner diameter, flank angle and tooth root radius,  the geometry is automatically calculated. Various special cases of the connection are also supported.

In addition to the geometry, axial load, preload as well as the permissible surface pressure and the corresponding safeties are determined at maximum load.

Common dimensions can be selected easily and quickly from an integrated database. Here, diameters from 50 to 900 mm can be chosen – each with a suitable number of teeth, inner diameter and tooth root radius.

The permissible pressures are determined from material properties. Already existing materials can be easily selected from the integrated material database. Additionally, the user can enter individual materials for the calculation.

All important results are displayed directly in the results overview of the calculation module. After completing the calculation, the user can generate a report. The report contains all relevant input data and results and is available in HTML as well as PDF format.

The output of the 3D model of the Hirth coupling is also possible directly in a 3D CAD system by using the eAssistant CAD-PlugIns.

Input of geometry data
Calculation of strength
Selection of geometry
Material database
Calculation report